QJK Okno

Ideal NEO MD

Smukłe i symetryczne profile nawiązują do aktualnych trendów projektowych i nadają lekkości i elegancji oknom. Niezwykle wąskie złożenia profili to jeszcze więcej światła w pomieszczeniach. Atrakcyjne rozwiązanie zarówno w nowym budownictwie, jak i w renowacji. Wyposażenie standardowe: • dwukomorowy pakiet szybowy Ug = 0,5 W/(m2K) • ciepła ramka tworzywowa Swisspacer Ultimate - jako opcja bezpłatna • zgrzew V-Perfect • 4 zaczepy antywyważeniowe w zależności od wielkości skrzydła i systemu okuć • mikrowentylacja • klamka aluminiowa • mechanizm blokady błędnego położenia klamki • uszczelki obwiedniowe, przyszybowe oraz centralna w kolorze czarnym lub szarym • wypełnienie dolnego rowka okuciowego • listwa podparapetowa

Najważniejsze cechy

Parametry

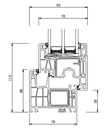
ParametrWartość
Głębokość zabudowy76
Ilość komór6
Ilość uszczelek3
Pakiet szklany24mm - 54mm
ZgrzewV-Perfect
Izolacja akustyczna36dB

Potrzebujesz wyceny lub doradztwa?

Skontaktuj się z nami