QJK Okno

Iglo Edge

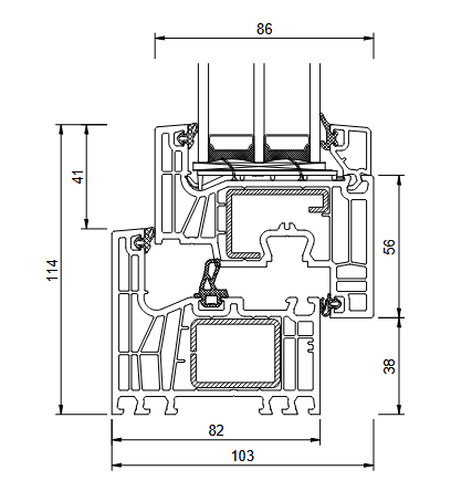
Zaawansowane technologiczne okno serii Iglo Edge wyróżnia się doskonałym parametrem izolacji cieplnej wynoszącym Uw = 0,66 W/(m2K)* oraz nowoczesnym, kanciastym kształtem profilu o wysokości złożenia ramy + skrzydła wynoszącej tylko 114 mm. Za bardzo dobre parametry izolacji cieplnej odpowiada m.in. 7-komorowa budowa profilu oraz 3 uszczelki EPDM, w tym uszczelka centralna. Wyposażenie standardowe: • dwukomorowy pakiet szybowy Ug = 0,5 W/(m2K) • ciepła ramka tworzywowa Swisspacer Ultimate • zgrzew V-Perfect • 4 zaczepy antywyważeniowe w zależności od wielkości skrzydła i systemu okuć • mikrowentylacja • aluminiowa klamka okienna DUBLIN • mechanizm blokady błędnego położenia klamki • uszczelki obwiedniowe, przyszybowe oraz centralna w kolorze czarnym lub szarym • wypełnienie dolnego rowka okuciowego • listwa podparapetowa • bogata kolorystyka oklein pvc • 3 kolory profilu do wyboru: biały, brązowy lub antracytowy

Najważniejsze cechy

Parametry

ParametrWartość
Głębokość zabudowy82mm
Ilość komór7
Ilość uszczelek3
SzybaUg=0,5 z ciepłą ramką
ZgrzewV-Perfect
Izolacja akustyczna36-47dB

Potrzebujesz wyceny lub doradztwa?

Skontaktuj się z nami