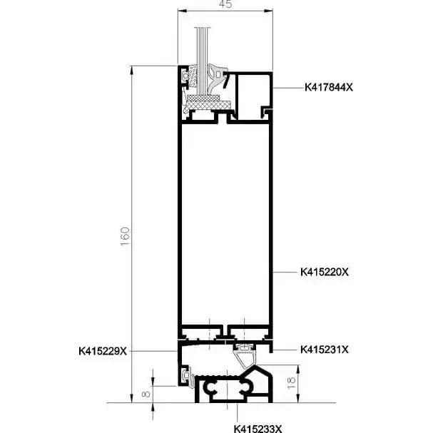
MB-45
Aluminiowy system okienno-drzwiowy bez izolacji termicznej
Najważniejsze cechy
- •Bez izolacji termicznej
- •Nadaje się do zabudowy wewnętrznej i zewnętrznej gdzie nie ma wymogu izolacji temicznej
- •Możliwość zastosowania opadającego progu w drzwiach
Parametry
| Parametr | Wartość |
|---|---|
| Głębokość zabudowy | 45mm |
| Pakiet szklany w oknach | 2mm - 35mm |
| Pakiet szklany w drzwiach i fixach | 2mm - 26mm |
| Max szerokość skrzydła drzwi | 1250mm |
| Max wysokość skrzydła drzwi | 2400mm |
| Max waga skrzydła drzwi | 120kg |
| Max waga skrzydła okiennego | 130kg |
Galeria


