MB-77 HS
Aluminiowe drzwi tarasowe podnoszono-przesuwne
Najważniejsze cechy
- •dostępne rozwiązania z wąskim słupkiem, w których widoczna szerokość kształtowników na styku skrzydeł drzwi wynosi tylko 47,5 mm lub 50 mm
- •ościeżnice dostępne są w dwóch wersjach: 2-szynowe oraz 3-szynowe
- •możliwość napędu drzwi automatem "HS-Master" sterowanym za pomocą przycisku lub pilota
- •możliwość zastosowania ukrytego napędu "HS e-Power", wyposażonego w inteligentny system wykrywania przeszkód i wyłącznik obciążeniowy
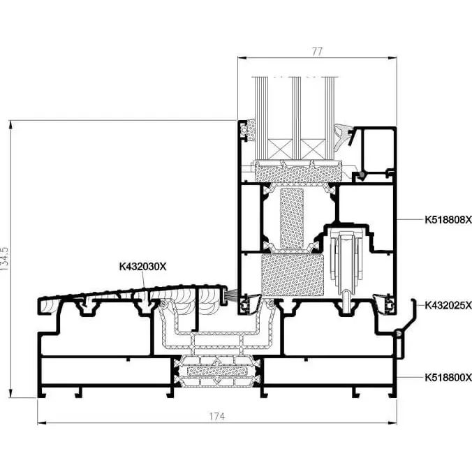
Parametry
| Parametr | Wartość |
|---|---|
| Głębokość zabudowy | 174mm (rama 2-szynowa) oraz 271mm (rama 3-szynowa) |
| Max waga skrzydła | 600kg |
| Max wymiar skrzydła | 3240mm x 3300mm |
| Pakiet szklany | 13,5mm - 58,8mm |
Galeria




