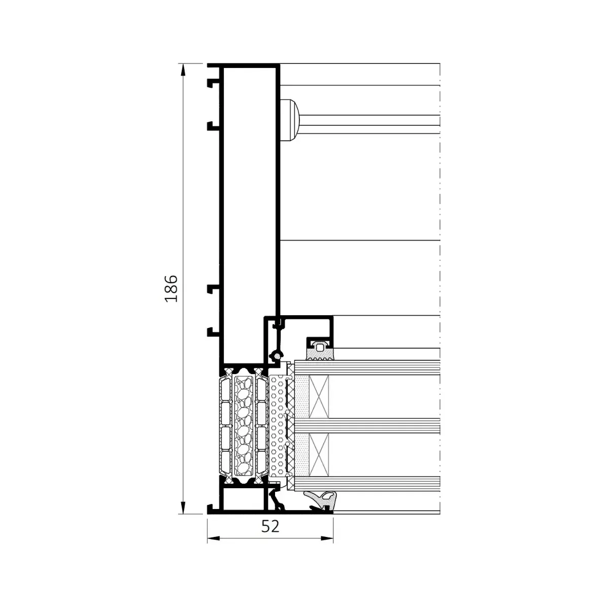
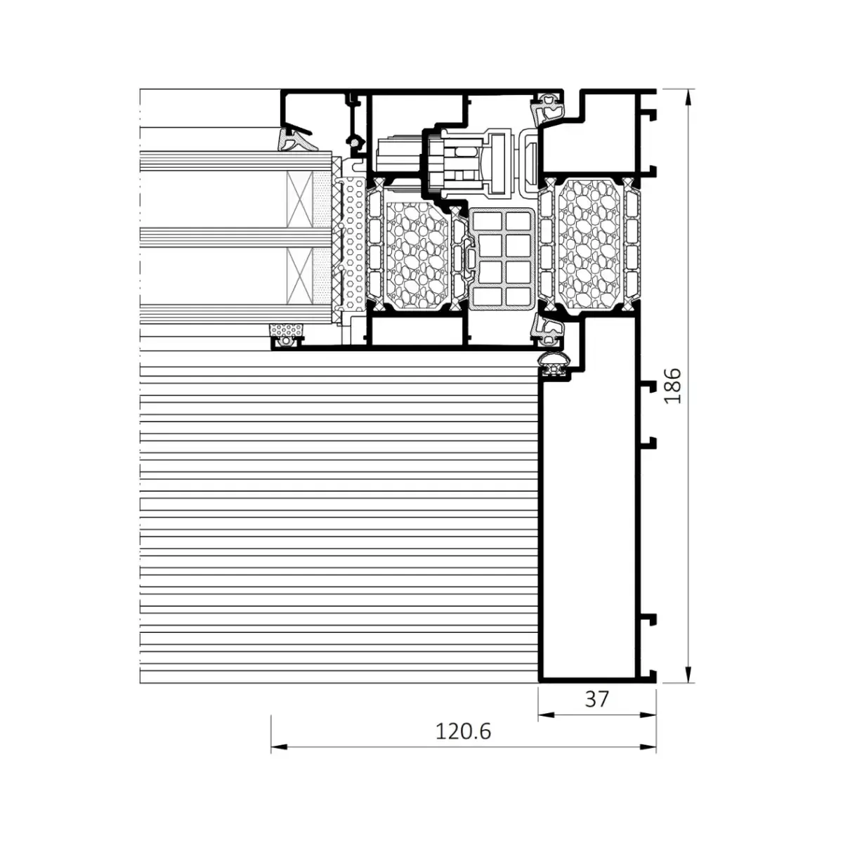
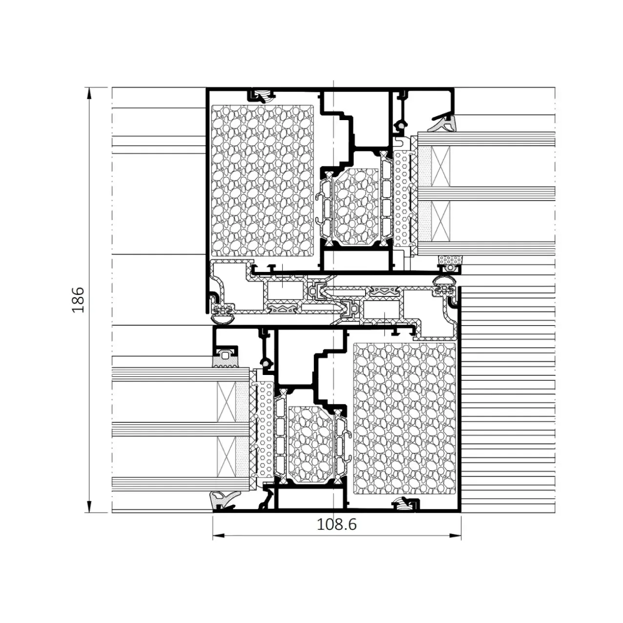
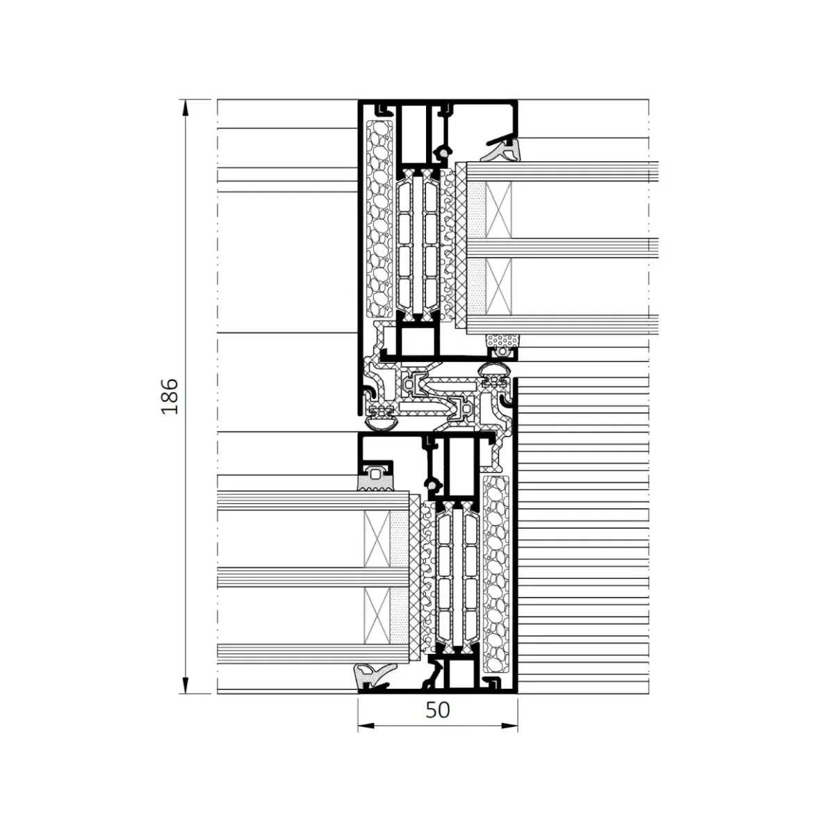
MB-82 HS
Aluminiowe drzwi tarasowe podnoszono-przesuwne
Najważniejsze cechy
- •Możliwość zastosowania "wąskiego słupka" (50mm)
- •Szklenie kwater stałych od zewnątrz, ułatwiające montaż dużych i ciężkich szyb
- •Kompleksowe rozwiązanie systemowe montażu: dostępna podwalina EPS, profil kompensacyjny, konsole montażowe i odwodnienie liniowe
- •Trzy warianty termiczne konstrukcji: ST, SI oraz SI+
Parametry
| Parametr | Wartość |
|---|---|
| Głębokość zabudowy | 186mm |
| Pakiet szklany | dla skrzydeł drzwi: 18-66 mm, dla kwater stałych 36-65 mm |
| Max waga skrzydła | 600kg |
| Max wymiar skrzydła | 3240mm x 3300mm |
Galeria





