MB-86 FOLD LINE HD
Aluminiowe drzwi harmonijkowe z izolacją termiczną
Najważniejsze cechy
- •Dostępne rozwiązanie narożne a także panoramiczne - możliwość złożenia konstrukcji z 8 skrzydeł
- •Duże dopuszczalne gabaryty konstrukcji, pozwalające na budowę drzwi o wysokości skrzydeł do 3000 mm oraz szerokości 700 do 1200 mm
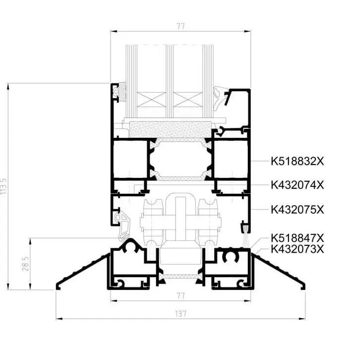
- •Trzykomorowe, wytrzymałe kształtowniki aluminiowe o głębokości konstrukcyjnej: 86 mm dla ościeżnic i 77 mm dla skrzydeł drzwi
Parametry
| Parametr | Wartość |
|---|---|
| Max waga skrzydła | 120kg |
| Max szerokość skrzydła drzwi | 1200mm |
| Max wysokość skrzydła drzwi | 3000mm |
| Pakiet szklany | 13,5mm - 61,5mm |
Galeria




